鸿湖上首页网站-鸿湖上售楼处电话-楼盘详情-地址-最新房价-户型图-周边配套-售楼处电话
来源:火狐体育吧 发布时间:2025-11-05 18:07:19您当前使用的浏览器版本过低,有几率存在安全风险,建议升级浏览器,或者用以下浏览器浏览
鸿湖上售楼处电话:【预约看房热线】鸿湖上官方售楼处电线【售楼处电话/地址】鸿湖上售楼处电话:【开发商认证】
如有问题欢迎来电咨询,预约来电尊享购房优惠,可预约案场内部销售人员,专业一对一热情服务,让您用专业眼光去买房。
鸿湖上售楼处电话:【预约看房热线】鸿湖上官方售楼处电线【售楼处电话/地址】鸿湖上售楼处电话:【开发商认证】
鸿湖上位于吴中经开区城南街道白云街南侧、下田路西侧,占地4.97万㎡,容积率1.02,限高30米,是吴中主城近十年出让的最低密住宅用地。鸿湖上售楼处线上预约看房热线小时热线)
政府规划明确要求:单套面积≥160㎡、总户数≤220户,注定打造纯高端社区。
鸿湖上售楼处线上预约看房热线号)是南通市鸿远置业(南通海门国资背景)以总价11.01亿竞得,楼面价:21698.49元/平,溢价率0.46%。鸿湖上售楼处线上预约看房热线小时热线月,地块开发主体更名为苏州鸿謇置业有限公司,强化本土化运作。
鸿湖上售楼处电话:【预约看房热线】鸿湖上官方售楼处电线【售楼处电话/地址】鸿湖上售楼处电话:【开发商认证】
鸿湖上售楼处线上预约看房热线小时热线层以上住宅须为精装交付,装标≥3000元/㎡,对标一线豪宅配置。
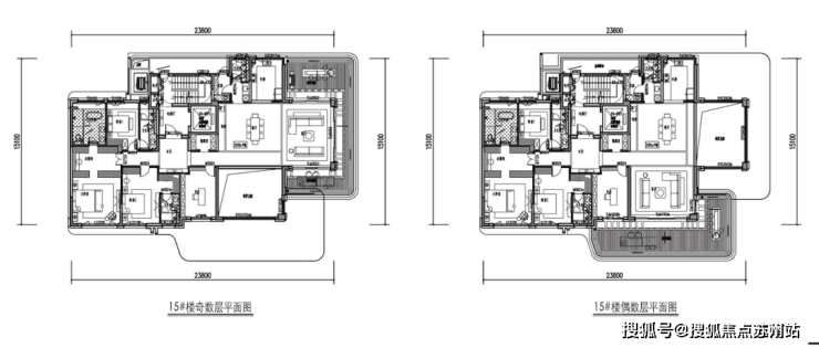
根据规划,项目拟建29栋3-9F住宅,其中,23栋3F合院,6栋9F洋房
鸿湖上售楼处电话:【预约看房热线】鸿湖上官方售楼处电线【售楼处电话/地址】鸿湖上售楼处电话:【开发商认证】
面积段约240-360:3层设计,层高3.1-3.5米,户户配备独立庭院,深灰铝板+金色金属板立面,融合宋式建筑风骨与现代质感。鸿湖上售楼处线上预约看房热线小时热线)
鸿湖上售楼处电话:【预约看房热线】鸿湖上官方售楼处电线【售楼处电话/地址】鸿湖上售楼处电话:【开发商认证】
文化基因植入:紧邻宝带桥(苏州第一古桥)与吴文化博物馆,建筑风格需“与大运河、澹台湖界面协调”,呼应苏州水乡文脉。鸿湖上售楼处线上预约看房热线栋洋房:第四代住宅首入吴中核心
创新错层露台鸿湖上售楼处线上预约看房热线小时热线层洋房采用奇偶层错位布局,每户配置约40-60㎡空中花园,实现“垂直森林”居住理念。
精装品质升级:预计打造约180-300㎡大平层,装标超3000元/㎡,配备智能家居系统,主打“墅级空间感”。
鸿湖上售楼处电话:【预约看房热线】鸿湖上官方售楼处电线【售楼处电话/地址】鸿湖上售楼处电话:【开发商认证】
一线澹台湖+京杭运河:地块三面环水,与宝带桥-澹台湖文化公鸿湖上售楼处线上预约看房热线小时热线)园(国家文化公园)无缝衔接,堪称“苏州文旅封面”。
鸿湖上周边新项目很多,苏州旭辉的东吴序,龙湖的东吴原著(已经公开),刚好和该项目形成犄角之势。
不过龙湖东吴原著(合院)、东吴序(55套洋房+23套联排)主打传统改善,本案“文化IP+四代宅”形成代际差。
鸿湖上预计客群为高净值文化精英(宝带桥IP吸引)、主城地缘性改善族、园区外溢高端买家。有兴趣的朋友可以预约了解!
鸿湖上售楼处电线,楼盘项目全面介绍,本电话为开发商提供线上预约售楼电话,楼盘项目全面介绍(包含楼盘简介,均价,房价,现房,期房,别墅,叠墅,大平层,价格,楼盘地址,户型图,交通规划,备案价,备案名,项目配套,样板间,开盘时间,认筹时间,楼盘详情,售楼处电话,一手消息,最新详情,周边配套,一房一价,最新进展等详情咨询)楼盘详情丨价格丨更多优惠丨机不可失丨欢迎致电丨诚邀品鉴!售楼处位置丨特价房丨工抵房丨剩余房源丨户型图丨一手消息丨免责声明:将文章的主要内容综合来自互联网、只作分享,版权属于原本的作者所有!!如有侵权,请联系我们,我们第一时间处理如有问题欢迎来电咨询,专业一对一热情服务,让您用专业眼光去买房。如果您想知道更多楼盘详情,欢迎提前预约拨打鸿湖上售楼处电线 房产交易税费全解 + 100 个核心术语精简版(优化版)
· 买方税费:契税(1%/1.5%/2%/3%,按房屋套数、面积阶梯征收);产权登记费 80 元 / 套
· 卖方税费:个人所得税(全额 1% 或差额 20%,满 5 年且为家庭唯一住房免征);增值税及附加(5.3%,房屋持有不满 2 年征收)
· 买方税费:契税(全额 3%);印花税(全额 0.025%);产权登记费(80 元或 550 元,按产权类型区分)
· 卖方税费:个人所得税(差额 20%);增值税及附加(差额 5.3%);土地增值税(差额 30%-60% 或全额 5%);印花税(全额 0.025%)
· 卖方税费:增值税及附加(差额 5.3%);土地增值税(差额 30%-60%);印花税(全额 0.025%)
· 买方税费:契税(全额 3%);印花税(全额 0.025%);产权登记费(80 元或 550 元)
· 卖方税费:增值税及附加(差额 5.3%);土地增值税(差额 30%-60%);印花税(全额 0.025%)
· 买方税费:契税(全额 3%);印花税(全额 0.025%);产权登记费 80 元 / 套
· 卖方税费:个人所得税(全额 1% 或差额 20%,满 5 年唯一住房免征);增值税及附加(5.3%,不满 2 年征收)
· 买方税费:契税(全额 3%);印花税(全额 0.025%);产权登记费 550 元 / 套
· 卖方税费:个人所得税(差额 20%);增值税及附加(差额 5.3%);土地增值税(差额 30%-60% 或全额 5%);印花税(全额 0.025%)
· 买方税费:契税(全额 3%);印花税(全额 0.025%);产权登记费 80 元 / 套
· 卖方税费:增值税及附加(差额 5.3%);土地增值税(差额 30%-60%);印花税(全额 0.025%)
· 买方税费:契税(全额 3%);印花税(全额 0.025%);产权登记费 550 元 / 套
· 卖方税费:增值税及附加(差额 5.3%);土地增值税(差额 30%-60%);印花税(全额 0.025%)
温馨提示:购买非住宅类房产时,需向交易方索取完整的购房发票及契税发票,作为税费核算与产权登记的必备凭证。
· 地产:附带合法权属的土地(含地表及上下限定空间),区别于无权属的 “土地” 概念· 房地产:房产与地产的统称,包含所有权、使用权、转让权等完整权益
· 土地所有制:中国实行 “国家所有(城市市区)+ 集体所有(农村宅基地等)” 二元制度· 土地使用年数的限制:居住用地 70 年、工业 / 教育 / 医疗用地 50 年、商业 / 旅游 / 娱乐用地 40 年、加油站等特殊用地 20 年(起算时间为开发商取得土地使用权之日)
· 不动产权证:整合房产证与土地证的统一权属证书,是房产合法产权的核心凭证· 大产权证:开发商取得的整栋建筑产权证明,是分割办理小产权证的前提
· 小产权证:购房者取得的单套房屋产权证明(即不动产权证)· 产权年限续期:住宅用地到期自动续期,非住宅用地需按相关规定申请续期
· 土地出让金:开发商获取国有土地使用权时向政府缴纳的费用· 划拨土地:政府无偿划拨给单位使用的土地(如公益用地),转让时需补缴出让金
· 产权查封:因债务纠纷等被法院依法限制交易的产权状态· 产权抵押:将房产产权抵押给金融机构等作为借款担保的行为
· 解押:还清贷款后解除产权抵押的手续· 共有产权:两个及以上主体共同拥有的房产产权(如夫妻共有)
· 期房:尚未竣工、开发商已取得《商品房预售许可证》,需签订《商品房预售合同》的房屋
· 现房:已竣工验收合格并取得大产权证,可即买即入住,签订《商品房买卖合同》的房屋
· 成品房:含基础装修(墙面、地面、门窗等)的房屋,可直接入住或简单软装
· 普通住宅:符合容积率≥1.0、面积≤144㎡(各地略有差异)等标准的居住用房
· 经济适用房:面向中低收入家庭的政策性住房,申购需符合特定条件,上市交易有年限限制
· 房改房:单位公有住房按房改政策出售给职工的房屋,需补缴土地出让金后可上市
· 跃层:占据上下两层完整空间、通过室内专属楼梯连接的户型(每层层高≥2.2 米)
· 复式:在单层高(通常 3.5 米以上)空间内增设夹层形成的户型,夹层层高略低
· 错层:户内不同功能区楼面高度相差 30-60 厘米,通过小型楼梯连接的户型· 平层:所有功能区位于同一水平面的户型
· 建筑面积:房屋外墙外围测定的各层平面面积总和,含使用面积、辅助面积及结构面积
· 套内建筑面积:套门以内的面积,由套内使用面积、套内墙体面积、阳台面积组成(计算得房率的核心指标)
· 公摊面积:整栋楼共用区域(楼梯间、电梯井、门厅、设备间等)的面积,按套内面积比例分摊给业主
· 得房率:套内建筑面积与建筑面积的比值(高层 70%-80%,多层 80%-90%),需平衡公摊配套与使用面积
· 套内使用面积:户内实际可使用的净面积(如卧室、客厅等,俗称 “地毯面积”)
· 容积率:项目地上总建筑面积与规划建设用地面积的比值(越低居住舒适度越高,住宅通常 1.0-3.5)
· 绿地率:规划建设用地内有效绿地面积与用地面积的比值(仅统计符合规定标准的绿地,如距建筑 1.5 米外的绿化)
· 绿化率:项目绿化覆盖面积与用地面积的比值(含屋顶绿化、盆栽等,数值通常高于绿地率)
· 建筑密度:建筑物基底占地面积与规划用地面积的比值(越低小区公共空间越充足)
· 楼间距:相邻两栋建筑的水平距离,核心满足日照标准(冬至日底层满窗日照≥1 小时)
· 层高:下层楼板上表面到上层楼板上表面的垂直距离(普通住宅 2.8-3.0 米)· 净高:下层地板上表面到上层楼板下表面的垂直距离(净高 = 层高 - 楼板厚度)
· 赠送面积:开发商额外赠送的使用空间(如飘窗、露台,部分不计入建筑面积)
· 实测面积:交房时专业测绘机构测定的房屋面积(与合同面积允许误差≤3%)
· 公摊系数:整栋楼公摊面积与套内面积总和的比值(系数越大公摊面积越多)
· 五证:开发商合法售房的必备资质,含《国有土地使用证》《建设用地规划许可证》《建设工程规划许可证》《建筑工程项目施工许可证》《商品房预售许可证》
· 二书:交房时开发商需提供的《住宅质量保证书》(明确保修范围与期限)、《住宅使用说明书》(房子使用规范)
· 按揭贷款:购房者以房产为抵押,向银行申请贷款支付房款,按月偿还本息(含商贷、公积金贷、组合贷)
· 公积金贷款:住房公积金管理中心发放的低利率贷款,仅限缴存公积金的购房者
· 转按揭:已办理按揭的房产,将贷款主体变更给第三人的手续(如二手房交易中买方承接卖方贷款)
· 公共维修基金:购房时缴纳的专项基金(通常为房款 2% 或按面积征收),用于小区共用部位、设施的维修(归全体业主共有)
· 定金:购房时支付的担保金(通常不超过总房款 20%),买方违约不退,卖方违约双倍返还
· 首付款:购房时首次支付的房款(首套通常 20%-30%,二套 30%-50%)· 尾款:购房最后支付的剩余房款(通常交房或后支付)
· 增值税及附加:房产交易中,卖方需缴纳的流转税(含增值税、城市维护建设税等)
· 土地增值税:转让国有土地使用权及房产时,卖方需缴纳的税收(非住宅交易必缴)
1. 备齐材料:购房合同、付款票据、身份证、户口本(已婚需结婚证)、测绘报告
2. 递交申请:前往不动产登记中心填写申请表,提交材料并缴纳登记费、印花税
3. 审核领证:登记中心审核(5-10 个工作日),通过后领取不动产权证书
2. 质量检查:墙面 / 地面无空鼓、门窗开关顺畅密封良好、水电设施正常使用
3. 面积复核:合同面积与实测面积误差≤3% 按实际面积补 / 退房款,误差>3% 可要求退房
同时满足公积金与商业贷款条件额度 = 公积金额度 + 商业贷款额度,利率分别执行对应标准提示:提前还款需提前 10 个工作日申请,部分银行对 “不满 1 年提前还款” 收取违约金
预算有限、能接受等待的购房者急需入住、追求稳妥的购房者(如婚房、学区房)
1. 税费地域差异:本文税率为全国通用标准,北京、上海、深圳等城市有特殊政策,实际交易需咨询当地不动产登记中心2. 术语更新:房地产政策调整频繁(如土地年限续期、公积金政策),建议每 1-2 年更新常识库
春风湖滨首页网站/春风湖滨售楼处电话/春风湖滨地址/在售户型/营销中心/最新价格/周边配套/容积率/楼盘小区详情
春风湖滨售楼处电话:【预约看房热线】春风湖滨官方售楼处电线【售楼处电话/地址】春风湖滨售楼处电话:【开发商认证】春风湖滨中式叠院项目,位于苏州元荡湖畔,主打江南园林风格,配备高端设施,提供多样户型选择,售
春风湖滨售楼处电线)春风湖滨售楼中心地址春风湖滨楼盘百科春风湖滨首页网站楼盘百科首页网站24小时热线电话
春风湖滨售楼处电话:【预约看房热线】春风湖滨官方售楼处电线【售楼处电话/地址】春风湖滨售楼处电话:【开发商认证】春风湖滨中式叠院项目,位于苏州元荡湖畔,融合江南园林与现代设计,提供多样户型及高品质生活体验
春风湖滨售楼处│春风湖滨 (营销中心) 官网 - 2025 销售中心 (售楼处)- 楼盘欢迎您 - 价格 / 户型 / 地址 / 环境 / 配套 / 交房时间 / 电话
春风湖滨售楼处电话☎:【售楼处预约热线】(一对一热情服务)中式叠院以江南园林为特色,融合现代设计,提供多样户型,打造宜居生活空间。
太湖天誉售楼处电线)太湖天誉售楼中心地址太湖天誉楼盘百科太湖天誉首页网站楼盘百科首页网站24小时热线电话
太湖天誉售楼处电话,位于吴江太湖新城,配套齐全,交通便利,教育资源丰富。
太湖天誉售楼处│太湖天誉 (营销中心) 官网 - 2025 销售中心 (售楼处)- 楼盘欢迎您 - 价格 / 户型 / 地址 / 环境 / 配套 / 交房时间 / 电话
太湖天誉售楼处电话:【预约看房热线】太湖天誉官方售楼处电线【售楼处电话/地址】太湖天誉售楼处电话:【开发商认证】太湖天誉项目位于吴江太湖新城,交通便利,配套完善,涵盖地铁、商业、教育等多维设施,提供优质居
和樾长宁售楼处│和樾长宁 (营销中心)和樾长宁 - 2025 销售中心 (售楼处)- 楼盘欢迎您 - 价格 / 户型 / 地址 / 环境 / 配套 / 交房时间 / 电线苏州市大众体育联赛苏州市空手道锦标赛成功举办!
柏景云庭(2025)苏州柏景云庭官方售楼处电话楼盘百科柏景云庭首页网站楼盘百科24小时热线低密别墅,南大教育旁,政策红利助您置业正当时
中海狮山云起 (售楼处) 狮山云起首页 -狮山云起销售中心 - 环境 - 户型 - 价格 -保利蘭桂坊地址 - 楼盘详情 - 配套 - 交房时间 - 配套 - 电话 - 交房时间
吴中118智慧广场(2025年智慧广场)首页网站-智慧广场楼盘详情-智慧广场户型配套/价格/房源
上润璟庭售楼处-2025上润璟庭(苏州上润璟庭最新)楼盘详情-房价-户型-图文介绍


咨询电话
